建筑材料燃烧热值试验方法
发布时间:2019-06-25 09:04
本标准参照采用ISO 1716-1973《建筑材料热值的测定》
1 主题内容与适用范围
本标准规定了建筑材料总燃烧热值的定义、测定方法和燃烧热值的定义、计算方法。
本标准适用于建筑材料燃烧热值的测定。
2 术语和符号
某种材料完全燃烧时放出的热量,不仅与该材料的质量、燃烧产物的状态有关,而且还与燃烧时在恒容下还是恒压下进行有关。本标准确认的热值为在氧弹中测得的恒容燃烧热。
2.1 术语
a. 总燃烧热值(以下简称总热值)
单位质量的材料完全燃烧,并当其燃烧产物中的水蒸汽(包括材料中所含水分生成的水蒸汽和材料组成中所含的氢燃烧时生成的水蒸汽)均凝结为液态时放出的热量,被定义为该材料的总燃烧热值。
b. 燃烧热值(以下简称热值)
单位质量的材料完全燃烧,其燃烧产物中的水蒸汽(包括材料中所含水分生成的水蒸汽和材料组成中所含的氢燃烧时生成的水蒸气)仍以气态形式存在时所放出的热量,被定义为该材料的燃烧热值。它在数值上等于总热值减去材料燃烧后所生成的水蒸气在氧弹内凝结为水时所释放出的汽化潜热的差值。
c. 量热计热容量
量热系统在试验条件下温度升高1℃所需要的热量被定义为该量热计的热容量。其值通过量热基准物质苯甲酸在相同的试验条件下进行校正试验而得到。量热系统包括量热计内筒中的水及测定过程中温度发生变化的所有部分。
d. 量热基准物质
用于标定量热计热容量的基准物质。本标准指一等量热标准苯甲酸。
2.2 符号
Qzr 总热值,kJ/kg;
Qjr 热值,kJ/kg;
E 用苯甲酸作为基准物,并按仪器使用说明书规定所测得的量热计热容量,KJ/℃;
ti 主期开始时量热计内筒的水温,℃;
tm 主期中量热计内筒的高水温,℃;
c 量热计内筒与恒温室外筒之间的热交换正值,℃;
C 附加热量校正值,kJ;
m 试样质量,kg;
n 主期持续时间,s;
n′ 从主期开始到温度增加等于0.6(tm-ti)这一时刻所经历的时间,s;
V′ 试验初期的平均温度变化率,℃/s;
V″ 试验期末的平均温度变化率,℃/s;
ma 附加物质的质量,kg;
mf 点火丝的质量,kg;
Hoa 附加物质的热值,kJ/kg;
Hof 点火丝的热值,kJ/kg;
Hon 试样在氧弹中燃烧时氧弹内生成HNO3 的生成热,kJ;
F 试样中的氢含量,﹪;
q 试样燃烧后在氧弹内所凝结的水放出的汽化潜热,kJ/kg。
3 试验环境条件
a. 试验室应设在一单独房间,并且不得在同一房间内同时进行其他试验项目的测定。
b. 实验室室温应保持在15~35℃范围内,并且每次测定时室温变化不得超过1℃。
c. 实验室内应无强烈的空气对流,不应有强烈的热源和风扇,试验过程中应避免开启门窗。
d. 试验室应避免阳光直射,否则量热计应放在不受阳光直射的位置。
4 仪器设备
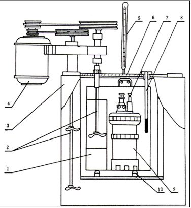
4.1 氧弹式量热计(见图1)

1-内筒;2-搅拌器;3-外筒;4-搅拌电机;5-外筒温度计;
6-内筒盖;7-电极;8-测温装置;9-氧弹;10-绝热支柱

图2 氧弹
1-进气管;2-进气阀;3-电极;4-排气阀;
5-燃烧挡板;6-坩埚架;7-坩埚;
b. 供氧弹使用的量热计内筒:内外表面抛光,带全套配件。
c. 量热计外筒(水夹套):配件齐全。
d. 恒速搅拌器:配件齐全。
e. 温度测量装置:用于测量量热计内筒水温,其精度要求为0.002℃。
f. 点火装置:其电压不超过20V。
4.2 天平
a. 分析天平:大称量200g,分度值:0.1mg。
b. 工业天平:大称量5kg,分度值:25mg。
4.3 附属设备
a. 氧气钢瓶。
b. 氧气减压器和氧气导管。
c. 铂坩埚,镍-铬坩埚或二氧化硅坩埚及其他耐热耐腐蚀和耐氧化材料制成、并能放置试样的器皿。
d. 普通水银温度计:测试范围0~50℃,分度值0.2~0.5℃。
5 试剂和材料
a. 氧气:含量>99.0﹪,并且不应含有可燃成分,因此不允许使用电解氧。
b. 苯甲酸:经计量机关鉴定并标明热值的苯甲酸。在40~50℃烘箱中放置3~4h 并冷却后在压片机上压成0.9~1.1g 的苯甲酸片,放入干燥器中备用。
c. 氢氧化钠标准溶液,c(NaOH)=0.1mol/L。
d. 酚酞指示剂,0.1﹪。
e. 点火丝:直径0.1mm 左右的铂、铜、镍铬丝或其他已知热值的金属丝,将其剪成长度为80~100mm 的小段,放在分析天平上称量(精确到0.1mg)并计算出相应的热值。
f. 擦镜纸:使用前先测出其热值。方法如下:取约1g 擦镜纸,在分析天平上称量(精确至0.1mg)后,用手团紧,放入坩埚中,然后按本标准第7.1.2~7.1.7条所规定的步骤测定其热值。取两次结果的平均值为标定值。
6 试样准备。
6.1 制样
a. 用手用钢锯在受检材料的不同位置上沿着与材料表面垂直的方向锯开若干长短不一的小口,锯材料时应使锯条运动方向尽可能与材料表面垂直,以保证所取试样的代表性。收集锯下的粉末,将其充分和匀,再经2~3 次缩样后,留取10g 左右试样。
b. 其他可制取有代表性试样的方法也可采用。
6.2 状态调节
将制好的试样放入温度为23±2℃、相对湿度为50±5﹪的环境中状态调节20h 后再移入不放干燥剂的干燥器(或其他密闭容器)中存放备用。
7 总热值的测定
7.1 测定步骤
7.1.1 在分析天平上精确称取已经状态调节的建材试样1.0~1.2g(精确至0.1mg)。用已精确称量至0.1mg 并已知热值的擦镜纸包裹称好的试样,包裹试样时应注意尽量包紧,使试样与擦镜纸紧密接触,以保证试样完全燃烧。将包好的试样放入坩埚内,并用手压紧待用。擦镜纸的用量视试样中含可燃成分多少而定,一般为0.5~1.5g,总的原则是使所取式样和擦镜纸在氧弹中完全燃烧后引起的内筒温升在1.5~3.0℃左右。
7.1.2 取一段已知质量和热值的点火丝,将其两端分别接在氧弹得两个电极柱上,注意保持良好接触,再把放有试样的坩埚放在坩埚支架上。调节下垂的点火丝与试样良好接触,并注意切勿使点火丝与坩埚相碰,以免形成短路,烧毁坩埚支架,同时还应注意防止两电极间以及坩埚同另一电极之间的短路。
7.1.3 向氧弹内加入10mL 蒸馏水,将已装好试样和点火丝的弹头轻轻放入弹内,小心拧紧弹盖,注意避免坩埚和点火丝的位置因受震动改变而使点火丝和试样脱开。接上氧气导管,先以一股缓慢的氧气流驱尽弹内空气后,关闭排气阀,再往氧弹内缓缓充入氧气,直至弹内压力达2.5Mpa。对于难燃材料,弹内压力应充至3.0~3.2Mpa。
7.1.4 向内筒中加入一定量蒸馏水,蒸馏水的量以放入氧弹后氧弹盖的顶面(不包括突出的氧气阀和电极)淹没在水面下10~20mm 为准。每次试验时的内筒水量都必须与标定热容量时的内筒水量一致(相差1g 以内)。水量用称量法测定,在工业天平上精确称量至1g。
调节内筒水温,使其比外筒水温低0.7~1.0℃。外筒水温应与室温尽量接近,相差不得超过1℃。
7.1.5 将装好水的内筒放入量热计的外筒(水夹套)内再放进已充好氧的氧弹,装好搅拌器及其传动机构,把氧弹的点火电极与点火电路接好,盖上筒盖,通过盖上的小孔把温度测量装置插入内筒中。
7.1.6 开启搅拌器,搅拌速度与标定热容量时相同。3min 后开始计时,并读取纪录内筒水温。每分钟进行1 次,连续读取5min,这一阶段为热值试验初期。带有微电脑的氧弹式量热计则按其操作说明书启动测温程序。
初期结束后立即闭合点火电路进行点火,热值试验随即进入主期,记录此时内筒水温ti,以后每30s 纪录1 次。
注意观察内筒温度,如30s 内温度急剧上升,则表明点火成功,试验可继续进行,否则应立即停止试验。
内筒水温达到高值tm 时,试验自动进入末期,内筒水温逐渐开始下降。此时水温变化应每分钟纪录1 次,共纪录5min。5min 后关闭搅拌器并记录此时室温和外筒水温。
7.1.7 取出氧弹,开启排气阀,缓慢排出燃烧废气后卸下弹盖,仔细观察弹筒和坩埚内部。如有试样燃烧不完全的迹象,试验应作废。找出未燃烧完的点火丝,称量(精确至0.1mg),计算已燃烧点火丝在氧弹中放出的热量。
用蒸馏水冲洗弹内各部分、排气阀、坩埚内外和燃烧残渣。将全部洗涤液共约100mL 收集在一只烧杯中,并用0.1mol/L 氢氧化钠标准溶液滴定以测定所生成的硝酸。
消耗1mL0.1mol/L 氢氧化钠标准溶液的硝酸的生成热为5.987J。
7.2 结果计算
a. 普通氧弹式量热计
试验的总热值由下式计算:
m
E t t c C
Q kJ kg m i
zr
? + ?
= ( )
( / ) ????????????(1)
式中:c=(n-n′)V″-n′V′
C=maHoa+mfHof+Hon
b. 带微电脑的氧弹式量热计
按仪器使用说明书的要求通过键盘向电脑输入热容量、试样质量和附加热量等有关数据,电脑根据这些数据和试验过程中自行纪录的温升数据,即可自动进行温度校正和总热值Qzr 的计算,并自动显示计算结果。
7.3 试样数目和重复试验差值
热值试验共需3 个平均试样。每两个平行实验结果之间的差值不得大于
167kJ/kg,否则整个试验应予重做。
7.4 测定结果表达
当某材料的3 个平均试样的3 次热值试验结果的重复试验差值符合7.3 条的规定时,则以这3 次试验结果的算术平均值作为该材料的总热值。
8 热值的计算
8.1 材料在氧弹中燃烧后凝结水的汽化潜热的计算
8.1.1 氢含量的测定
按6.1 条规定制成有代表性的粉末状试样并按6.2 条规定进行状态调解,再用微量分析来测定材料组成中氢的含量F。
氢含量的测量共进行两次,两次测定结果的允许误差应不超过0.15﹪。
8.1.2 凝结水汽化潜热的计算
q(kJ/kg)=218.13F ????????????(2)
8.2 热值计算
Qjr(kJ/kg)=Qzr-q ????????????(3)
9 试验报告
试验报告应包括下列内容:
a. 试验依据的标准;
b. 材料名称、商标和生产厂家;
c. 材料外观、组分和密度;
d. 试验结果:
总热值(kJ/kg)
试验1
试验2
试验3
平均值
凝结水的汽化潜热(kJ/kg)
热值(kJ/kg)
e. 试验现象;
f. 委托试验单位;
g. 试验单位;
h. 试验人员及试验日期。
附加说明:
本标准由中华人民共和国公安部提供。
本标准由全国消防标准化技术委员会归口。
本标准由公安部四川消防科学研究所、建设部中国建筑科学院防火部负责起草。
本标准主要起草人何郁文、丁敏、孙玉虎、马道贞。





